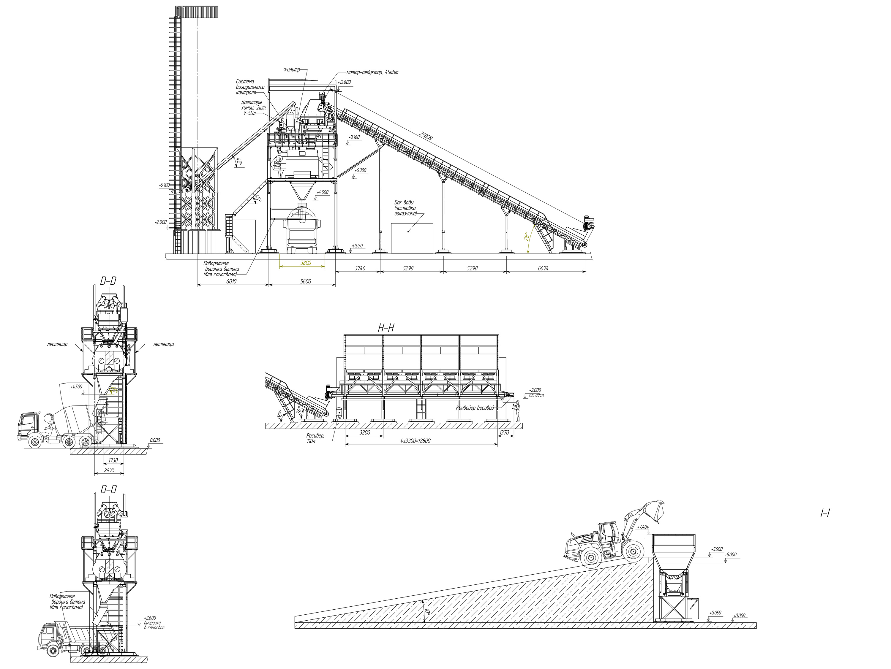
| Производительность | до 130 м3/час |
| Бетоносмеситель | двухвальный CO-NELE CHS 6750/4500 |
| Подача заполнителей | наклонный конвейер |
Почему нам стоит доверять?
Завод для строительства дорог и аэропортов SmartBeton 130 является незаменимым оборудованием в сфере дорожного строительства и прекрасно подходит для формирования прочных дорожных покрытий, полос аэродромов и пешеходных зон.
Он отличается высокой мобильностью и способен производить до 130 м³ бетона в час, что обеспечивает выполнение больших объемов работ в сжатые сроки. Оснащенный современными двухвальными смесителями от известного бренда CO-NELE CHS 6750/4500, завод обеспечивает отличное качество смешивания. Подача заполнителей происходит через наклонный конвейер, а также предусмотрен накопительный бункер для заполнителей.
Управление заводом осуществляется с помощью автоматизированной системы управления технологическими процессами SmartMix, что позволяет одному оператору эффективно контролировать все этапы производства. Дополнительно предоставляется круглосуточная техническая поддержка, что обеспечивает своевременное решение всех возможных вопросов.
Бетонный Завод SmartBeton 130 доступен в летнем и всесезонном вариантах.
Преимущества
-
Смесители CO-NELE премиум-класса
-
Круглосуточная поддержка
-
Возможность изменений конфигурации завода
-
Управление заводом с помощью одного оператора через АСУ
-
Высокая производительность, надежность и качество
-
Мобильность: переносные бункеры и портальная установка
-
Гарантия на смесительные агрегаты — 2 года
· Объем по загрузке – 6750 л
· Объем уплотненной смеси за цикл – 4500 л
· Количество валов – 2 шт.
· Количество рычагов - 22 шт.
· Мощность привода – 2х75 кВт
· Мощность гидростанции – 4,0 кВт
· Частота вращения валов – 22 об/мин
· Крупность заполнителей - 80 мм
· Расходный бункер 30 м3 - 4 секции
· Максимальная вместимость – 120 м3
· Решетки 100мм х 100 мм для исключения попадания крупных включений
· Челюстной затвор с пневматическим приводом – 16 шт.
· Клапан быстрого выхлопа – 16 шт.
· Датчик положения - 16 шт.
· Электровибратор MVE 500/3 – 4 шт.
· Покрытие – грунт (1 слой), алкидно-уретановая эмаль (2 слоя)
· Микроволновой датчик Humiarc-P-V3
· Корпус из нержавеющей стали покрытый полиуретаном для более высокой износостойкости
· Считывание данных в потоке материала во время дозирования
· Предназначен для сыпучих
· 1 цифровой вход, 2 аналоговых выхода
· Соединение свободное RS-485
· Мотор-редуктор – 11 кВт
· Приводной барабан футерованный
· Рама конвейера с роликоопорами
· Лента с тремя слоями армирования
· Очиститель ленты конвейера, состоящий из скребков, изготовленных из полиуретана
· Комплект роликов
· Станция натяжная, датчик движения ленты
· Аварийная система остановки конвейера
· Тензометрический датчик НПВ 2000 кг – 4 шт.
· Электровибратор MVE 300/3 – 2 шт.
· Длина конвейерной ленты – 24 000* мм
· Ширина конвейерной ленты 1200 мм
· Мотор-редуктор – 18* кВт
· Приводной барабан футерованный
· Рама конвейера с роликоопорами
· Лента конвейерная шевронная с тремя слоями армирования
· Станция натяжная, Комплект роликов
· Вместимость – 6,0м3
· Тензометрический датчик – 3 шт. (ZEMIC, США)
· Выгрузной затвор шиберный с пневмоприводом в сборе - 1 шт.
· Электровибратор MVE 300/3 – 1 шт.
· Люк обслуживания
· Стенки конусной части бункера, покрыты полиуретановой футеровкой
· Объем дозатора цемента – 2,5 м3
· Тензодатчик НПВ 2000 кг – 3 шт.
· Разгрузочный дисковый затвор ДУ 300 с антиабразивным покрытием
· Поворотный пневматический привод
· Распределитель эл. пневматический
· Микропереключатель
· Пневмовибратор с пневмоклапаном
· Объем дозатора воды - 1200 л
· Тензодатчик НПВ 1000 кг – 1 шт. с узлом встройки
· Дозатор воды изготовлен из
· Разгрузочный дисковый затвор ДУ 100 с пневмоприводом – 1 шт.
· Распределитель эл. пневматический – 1 шт.
· Датчик положения – 1 шт.
· Насос моноблочный подающий 2,2 кВт - 1 шт.
· Обратный клапан VR – 1 шт.
· Объем дозатора из нерж. стали - 50 л
· Тензодатчик НПВ 100 кг с узлом встройки
· Разгрузочный дисковый затвор ДУ 50 с пневмоприводом
· Распределитель эл. пневматический
· Датчик положения
· Загрузочный пневмоотсечной клапан ДУ 25 (1 шт.) и ДУ 50 (3 шт.) из нержавеющей стали с минипневмораспределителем
· Насос моноблочный подающий
· Обратный клапан VR
· Расходомер электромагнитный
· Токовый диапазон 4-20 мА
· Значение 20 мА – 75 дм3/мин
· Постоянная времени 1,000 с
· Значение импульса – 0,5000 с
· Длительность импульса 100,00 мс
· Корпус алюминиевый
· Пылевлагозащищенный моноблочный шкаф
· Управляющая, защитная и коммутационная аппаратура
· Контроллер
· Модули ввода/вывода
· Блоки питания
· Питание – 380 В, 50 Гц
· Степень защиты IP-54
· Темп. эксплуатации – от -5 до +40 °С
· Местное управление
· Пылевлагозащищенный шкаф
· Пневмоостров
· Блок подготовки воздуха
· Фильтр пневмосети
· Регулятор давления
· Манометр
· Разводка электрическая
· Степень защиты IP-54
· Платформа смесителя с опорными стойками, лестницами и ограждениями
· Конструкция, адаптированная для выгрузки смеси на отметке 4000 мм
· Крепежные конструкции трубопроводов, электрических кабелей
· Рама весового оборудования
· Дробеструйная обработка металлоконструкций
· Покрытие – грунт (1 слой), алкидно-уретановая эмаль (2 слоя)
· Комплект силовых кабелей
· Комплект слаботочных кабелей
· Трубка воздушная
· Кабель-каналы
· Гофрированная трубка
· Крепеж
· Кабина, утепленная минеральной ватой
· Наружная отделка – крашенный профлист
· Внутренняя отделка - декорированные пластиковые панели
· Пластиковое окно, стальная дверь, проводка электрическая
· Приборы осветительные
· Вес, не более - 2000 кг
· Компрессор стационарный электрический поршневой
· Производительность – 1400 л/мин
· Мощность привода – 7,5 кВт
· Максим. рабочее давление – 10 бар
· Объем ресивера – 500 л
· Блок подготовки воздуха
· Комплект трубопроводов и фитингов
· ПО "SmartMix" (Оператор)
· ПО "SmartMixLab" (Лаборатория)
· ПО "SmartMixSupervisor" (Диспетчер)
· Комплект нормирующих усилителей
· Датчик тока
· Системный блок (4096, 500, Intel, LAN, Windows) и монитор Full HD 1920 x 1080
· Источник бесперебойного питания
· Фильтр сетевой, клавиатура, мышь
· Вместимость – 160 тонн
· Рама опорная
· Конструкционная спецсталь 09Г2С для условий эксплуатации от -70 °C до +425 °C
· Антикоррозионная обработка - полная дробеструйная обработка перед окраской
· Двойная окраска (грунт, эмаль) импортными материалами
· Диаметр - 219 мм
· Длина по осям входа/выхода – 11 000 мм
· Угол наклона – до 45°
· Расположение привода - на входе
· Производительность - 30 м3/час
· Мощность привода - 11 кВт
· Корпус диаметром 800 мм с фланцем
· Кольцо для фильтра
· Площадь фильтрующей поверхности 24 м2
· Высота технического обслуживания 1100 мм
· Диаметр корпуса - 273 мм (10 дюймов)
· Пропускная способность воздуха - 9000 м3/ч
· Максимальное давление 5 кПа
· Корпус из углеродистой стали
· Круглое сечение ДУ 300
· Материал - алюминий
· Диск с антиабразивным покрытием, пыленепроницаемый
· Ручной привод
· Вибровентилятор - 8 шт.
· Пневмоклапан 24 V
· Комплект фитингов-соединителей
· Лопастной
· Частота вращения лопасти - 1 об/мин
· Напряжение – 24 V
· Простой процесс установки
· Устанавливается на внешнюю стенку бункера цемента
· Рабочая температура - от -20°С до +80°С
· Рабочее давление – 3-6 бар
· Энергия удара - 153 Дж
· Катушка 24 V
· Фильтр промышленный с вытяжным вентилятором
· Производительность фильтра - 135 м³/ч
· Пневмоочистка
· 2 фильтрующих картриджа
· Корпус нержавеющая сталь AISI 304
· Вентилятор 0,75 кВт с таймером очистки
· Установочное кольцо
· Обеспыливающая воронка с ответным фланцем
· Смеситель оснащен видеокамерой с выводом на пульт оператора для контроля процесса смешивания и готовности смеси
· Затвор дисковый поворотный ДУ 300 с поворотным пневматическим приводом
· Распределитель эл. пневматический в сборе
· Инфракрасная камера высокого разрешения
· Патрубок ДУ 300 мм с ответным фланцем - 2 шт.
· Фитинг угловой поворотный - 2 шт.
Другие модели заводов
Видео
Проекты
г. Соликамск
Комплекс построен в рамках проекта ликвидации опасности роста провала в районе калийных месторождений. Задачей комплекса стало укрепление грунта и заполнение бетонным раствором трещины, которая угрожала целому городу. Дополнительной сложностью стала необходимость в мобильности установки на случай движения провала, а также реализация проекта в условиях сурового климата Пермского края.
В течение 12 дней конструкторы «ТензоТехСервис» разработали полный комплект проектной документации комплекса, за 6 недель производство выпустило необходимое оборудование и через 3 месяца с момента поступления заявки комплекс был запущен в работу.
Производительность: 420 м³/час
Тип готовой смеси: многокомпонентный глинистый раствор
г. Чебоксары
В столице Чувашии компанией «ТензоТехСервис» был разработан комплекс по производству бетона всех типов с собственным складом для хранения цемента и инертных материалов, а также системой перевалки цемента из ж/д вагонов.
Особенностью этого проекта можно назвать глубокую автоматизацию всех производственных бизнес-процессов – от разгрузки пришедшего сырья до реализации готовой продукции.
Как и для каждого нашего клиента, в Чебоксарах мы разработали индивидуальный проект с оптимальным для производительности и инфраструктурных особенностей заказчика набором оборудования.
Производительность: 130 м³/час
Тип готовой смеси: конструкционный бетон, товарный бетон
г. Москва
Бетонный завод производительностью 180 м3/ч был разработан для круглогодичного обеспечения бетоном процесса строительства 5 станций «Кожуховской» линии Московского метро.
Для достижения высокой производительности и минимизации рисков простоя, что недопустимо на таком ответственном объекте, как строительство метро, специалистами «ТензоТехСервис» была предложена конфигурация TWIN. Данная конфигурация представляет собой 2 автономных бетонных завода, находящихся в непосредственной близости друг от друга и управляемых из одного пункта. Это решение позволило использовать единый склад заполнителей, цемента, воды и химических добавок, компактно разместить оборудование и использовать единую инфраструктуру, что в конечном счете значительно снизило эксплуатационные затраты.
Производительность: 180 м³/час
Тип готовой смеси: товарный бетон для строительства метрополитена
г. Новосибирск
Данный бетонный завод был разработан и возведен на объекте строительства восточного обхода города Новосибирска, который представляет собой 80 км скоростной четырехполосной трассы. Для реализации столь масштабного проекта требовалось большое количество дорожного и товарного бетона высокого качества.
Специалистами «ТензоТехСервис» были выработаны необходимые характеристики бетонного завода и разработан индивидуальный проект.
Готовый завод показал очень высокие показатели работы, время изготовления бетонной смеси, по сравнению с аналогичными заводами, было уменьшено до минимума, а качество готового продукта полностью удовлетворило заказчика.
Производительность: 135 м³/час
Тип готовой смеси: бетон для взлетно-посадочных полос и дорожного строительства
г. Воткинск
В городе Воткинске перед специалистами «ТензоТехСервис» стояла непростая задача: разместить завод производительностью 60м3/ч на сравнительно небольшом выделенном пространстве. Для этого был разработан индивидуальный проект с нестандартным расположением узлов завода.
Все оборудование для возведения данного завода было произведено на нашем собственном производстве и смонтировано нашими сотрудниками в кратчайшие сроки. Вся линия производства полностью автоматизирована посредством АСУ нашей собственной разработки.
Ограниченное пространство и сжатые сроки стали не препятствием, а вызовом для «ТензоТехСервис».
Производительность: 60м³/час
Тип готовой смеси: товарный бетон
г. Калининград
Данный завод по производству вибропрессованных изделий с технологией COLORMIX примечателен компоновкой с двумя бетоносмесителями - планетарным и турбинным. Все металлоконструкции завода прошли горячую оцинковку, а подача готовой смеси в вибропресс осуществляется посредством двухкамерного кюбеля адресной подачи бетона.
В особенности комплектации входит и взвешивающая вагонетка, 2 дозатора химии и 2 дозатора воды из нержавеющей стали, а также система дозировки красящих пигментов - COLORMIX.
Производительность: 30 м³/час
Тип готовой смеси: жесткие бетонные смеси для вибропрессования









